Villa Torsvik
Modern stil
Information om Villa Torsvik
En modernistisk utformad villa med strategiska indragningar av fasaden som skapar skyddade uteplatser. Den genomtänkta planlösningen är uppbygg av axlar och symmetrier vilket ger intryck av att huset är större och ståtligare än dess 145 kvm normalt skulle ge.
Takhöjd om 2,60 meter bidrar ytterligare till den svalt eleganta moderna stil som detta hus erbjuder.
- Hustyp: 1 plan
- Antal rum: 5 rum och kök
- Boyta: 145kvm
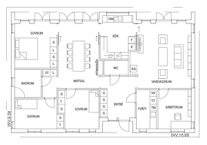
Planlösning
Här visar vi några exempel på planlösningar, men tänk på att inget är skrivet i sten.
Alla våra hus är arkitektritade och anpassas helt efter dina önskemål och behov.
Vill du veta mer om hur vi kan utforma ditt hem? Hör gärna av dig, så berättar vi mer.
Hur går det till att bygga hus?
Lorem ipsum dolor sit amet, consectetur adipiscing elit. Ut elit tellus, luctus nec ullamcorper mattis, pulvinar dapibus leo.ghj
Inspireras av tidigare projekt
Lorem ipsum dolor sit amet, consectetur adipiscing elit. Ut elit tellus, luctus nec ullamcorper mattis, pulvinar dapibus leo.








