Villa Lockeryd
Traditionell stil
Information om Villa Lockeryd
Det är något av ett herresäte över villa Lockeryd. Den symmetriska frontfasaden ger huset stil och karaktär. Detta är ett hus för dig med höga krav på ditt boende.
Med stort vardagsrum, ryggåstak, separat sovrumsdel för barnen samt föräldrasovrum med egen dusch och dressingroom, får du ett hem utöver det vanliga. Planlösning på detta fantastiska hus kan varieras på många sätt.
- Hustyp: 1 plan
- Antal rum: 5 rum och kök
- Boyta: 146kvm
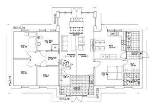
Planlösning
Här visar vi några exempel på planlösningar, men tänk på att inget är skrivet i sten.
Alla våra hus är arkitektritade och anpassas helt efter dina önskemål och behov.
Vill du veta mer om hur vi kan utforma ditt hem? Hör gärna av dig, så berättar vi mer.
Hur går det till att bygga hus?
Lorem ipsum dolor sit amet, consectetur adipiscing elit. Ut elit tellus, luctus nec ullamcorper mattis, pulvinar dapibus leo.ghj
Inspireras av tidigare projekt
Lorem ipsum dolor sit amet, consectetur adipiscing elit. Ut elit tellus, luctus nec ullamcorper mattis, pulvinar dapibus leo.








