Villa Olofsbo
Traditionell stil
Information om Villa Olofsbo
En enkel enplansvilla med stående- eller liggande träpanel. Strategisk indragning av fasaden vid framsidans utbyggnad skapar en välkomnade och skyddad entré. Ett mindre hus för den riktigt prismedvetne.
Det finns helt enkelt inga outnyttjade ytor i detta genomtänkta hus! Tre sovrum, vardagsrum och separat tvättstuga. För att skapa ett större vardagsrum kan sovrummet vid badet tas bort.
- Hustyp: 1 plan
- Antal rum: 4 rum och kök
- Boyta: 85kvm
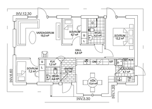
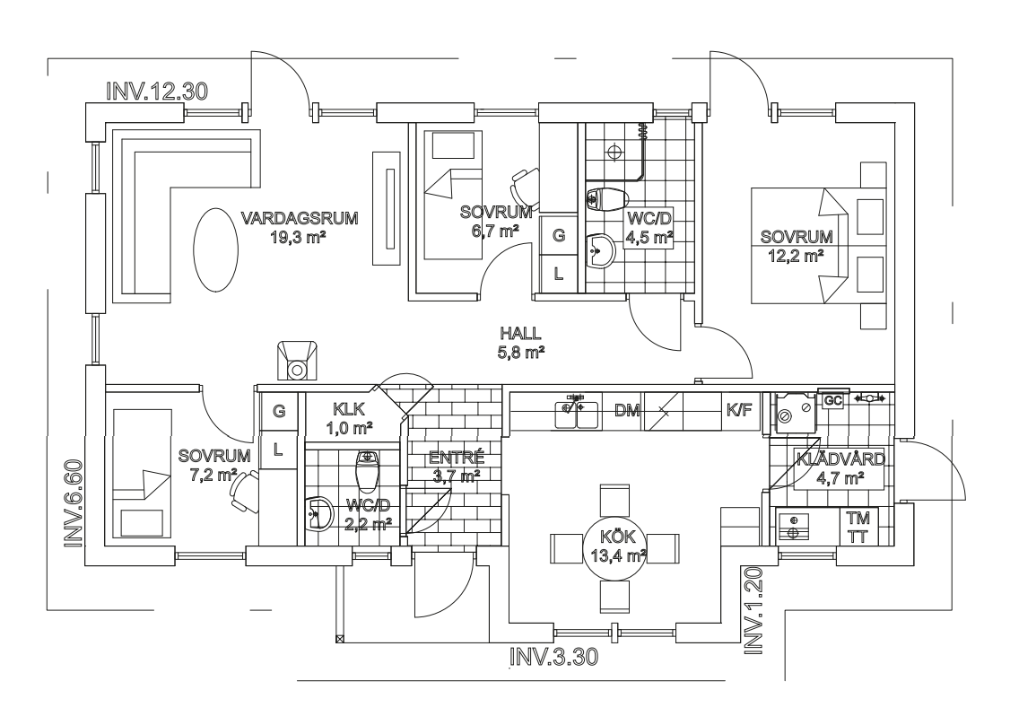
Planlösning
Här visar vi några exempel på planlösningar, men tänk på att inget är skrivet i sten.
Alla våra hus är arkitektritade och anpassas helt efter dina önskemål och behov.
Vill du veta mer om hur vi kan utforma ditt hem? Hör gärna av dig, så berättar vi mer.
Hur går det till att bygga hus?
Lorem ipsum dolor sit amet, consectetur adipiscing elit. Ut elit tellus, luctus nec ullamcorper mattis, pulvinar dapibus leo.ghj
Inspireras av tidigare projekt
Lorem ipsum dolor sit amet, consectetur adipiscing elit. Ut elit tellus, luctus nec ullamcorper mattis, pulvinar dapibus leo.








