Villa Karlsro
Traditionell stil
Information om Villa Karlsro
Vacker utsikt? Då är detta långsträckta eleganta hus alldeles utmärkt med sin skyddade uteplats och fönsterpartier länkade till det stora rum som utgör vardagsrum, kök och matplats.
Från denna generösa volym är sedan övriga rum länkade. I förlängningen av vardagsrummet finns ett underbart uterum – stort nog för en rejäl grillfest eller en lugn och skyddad plats under lata sommardagar.
- Hustyp: 1 plan
- Antal rum: 5 rum och kök
- Boyta: 140kvm
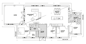
Planlösning
Här visar vi några exempel på planlösningar, men tänk på att inget är skrivet i sten.
Alla våra hus är arkitektritade och anpassas helt efter dina önskemål och behov.
Vill du veta mer om hur vi kan utforma ditt hem? Hör gärna av dig, så berättar vi mer.
Hur går det till att bygga hus?
Lorem ipsum dolor sit amet, consectetur adipiscing elit. Ut elit tellus, luctus nec ullamcorper mattis, pulvinar dapibus leo.ghj
Inspireras av tidigare projekt
Lorem ipsum dolor sit amet, consectetur adipiscing elit. Ut elit tellus, luctus nec ullamcorper mattis, pulvinar dapibus leo.








