Villa Holm
Traditionell stil
Information om Villa Holm
Svensk byggtradition har inspirerat till detta hus. Husets symmetriska fasader ger huset stil och en känsla av herresäte. Det generösa vardagsrummet har fönster åt tre håll och ryggåstak med takhöjd upp till 3,0 meter.
En flexibel villa som med sina stora rum ger utrymme för både praktiskt och trivsamt boende. Köket är rymligt med gott om arbetsytor, allt för att göra matlagningen båge enklare och roligare. Det tredje sovrummet ligger lite avskilt vilket gör det idealiskt till ett hemma kontor.
- Hustyp: 1 plan
- Antal rum: 4 rum och kök
- Boyta: 153kvm
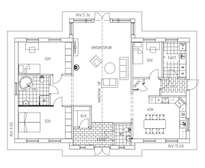
Planlösning
Här visar vi några exempel på planlösningar, men tänk på att inget är skrivet i sten.
Alla våra hus är arkitektritade och anpassas helt efter dina önskemål och behov.
Vill du veta mer om hur vi kan utforma ditt hem? Hör gärna av dig, så berättar vi mer.
Hur går det till att bygga hus?
Lorem ipsum dolor sit amet, consectetur adipiscing elit. Ut elit tellus, luctus nec ullamcorper mattis, pulvinar dapibus leo.ghj
Inspireras av tidigare projekt
Lorem ipsum dolor sit amet, consectetur adipiscing elit. Ut elit tellus, luctus nec ullamcorper mattis, pulvinar dapibus leo.








