Villa Kinna
Klassisk stil
Information om Villa Kinna
Med en blandning av modern- och klassisk stil är detta ett hus som passar många. Exteriört är villan inspirerad av sekelskifteshus men interiört är huset modernt. Den stora hallen leder in i ett stort allrum kombinerat med ett öppet kök.
Huset har många flexibla rum som ger möjlighet till ett unikt boende. Överplan med förhöjt väggliv skapar fantastiska utrymmen. Här hittar man inte bara tre sovrum utan också ett trevligt allrum.
- Hustyp: 1 1/2 plan
- Antal rum: 7 rum och kök
- Boyta: 198kvm
- Förhöjt väggliv
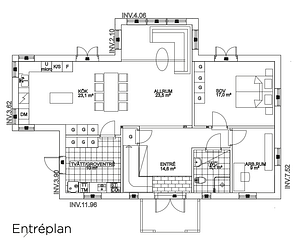
Planlösning
Här visar vi några exempel på planlösningar, men tänk på att inget är skrivet i sten.
Alla våra hus är arkitektritade och anpassas helt efter dina önskemål och behov.
Vill du veta mer om hur vi kan utforma ditt hem? Hör gärna av dig, så berättar vi mer.
Hur går det till att bygga hus?
Lorem ipsum dolor sit amet, consectetur adipiscing elit. Ut elit tellus, luctus nec ullamcorper mattis, pulvinar dapibus leo.ghj
Inspireras av tidigare projekt
Lorem ipsum dolor sit amet, consectetur adipiscing elit. Ut elit tellus, luctus nec ullamcorper mattis, pulvinar dapibus leo.








