Villa Rönnås
Traditionell stil
Information om Villa Rönnås
Villa Rönnås blir lätt kvarterets vackraste hus med sin karakteristiska entréfasad med synlig skorsten och sin baksida med en väl skyddad uteplats.
I husets högra flygel finns familjens privata utrymmen med sovrum och bad och i den vänstra flygeln finns allrum och det stora, ljusa köket. Centralt i huset finns entrén som en naturlig knutpunkt och med direktutgång till uteplatsen.
- Hustyp: 1 plan
- Antal rum: 5 rum och kök
- Boyta: 163kvm
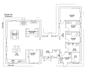
Planlösning
Här visar vi några exempel på planlösningar, men tänk på att inget är skrivet i sten.
Alla våra hus är arkitektritade och anpassas helt efter dina önskemål och behov.
Vill du veta mer om hur vi kan utforma ditt hem? Hör gärna av dig, så berättar vi mer.
Hur går det till att bygga hus?
Lorem ipsum dolor sit amet, consectetur adipiscing elit. Ut elit tellus, luctus nec ullamcorper mattis, pulvinar dapibus leo.ghj
Inspireras av tidigare projekt
Lorem ipsum dolor sit amet, consectetur adipiscing elit. Ut elit tellus, luctus nec ullamcorper mattis, pulvinar dapibus leo.








